projecten

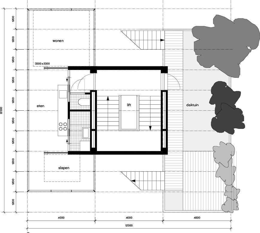
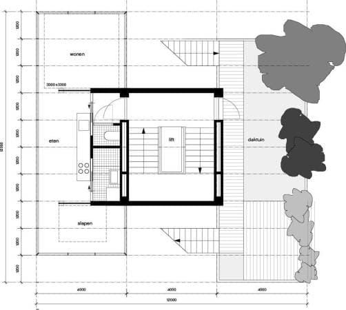
Verticale stadsparken met kleine woningen

PARASITES

Tiny houses, opgehangen aan een centrale kern met lift en trappenhuis. Over de daken slingert een openbare groene route omhoog naar steeds meer lucht, licht en groen. Een verticaal stadspark met een footprint van 12 x 12  m. Om de stad te vergroenen waar teveel steen is…   

projectinformatie

locatie | Den Haag
jaar | 2007
status | Studie
categorie | Wonen